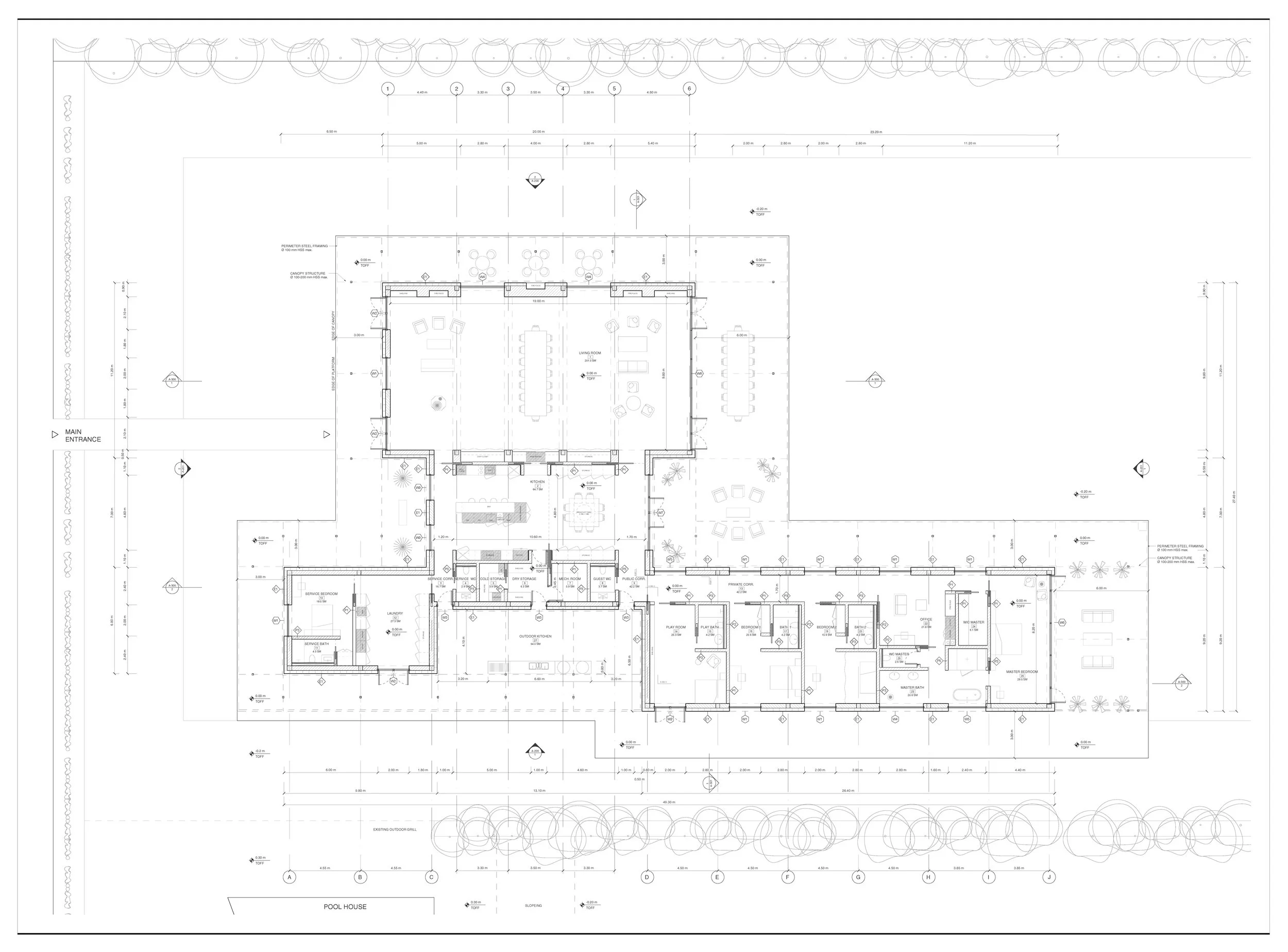
• this generous residence for a private client located in the heart of the expansive patagonian countryside, is tucked away between endless rows of poplar trees and a continuously flowing landscape of vineyards.

    Planned as an addition to an existing residential compound, the building fully integrates with the functions and services of the adjacent buildings. Apart from its main use as a residence it is also designed to accommodate large gatherings and dinners through the interplay of a spacious central kitchen and a living area that can be opened to seamlessly continue into the yard areas.

    The kitchen also serves as a node between the different wings of the building and is also the main dining area for the family’s every day use. simultaneously, it is a place from which the living area can be catered with fresh food and beverages when it is transformed into a dining hall during banquets.

Previous
Previous

Micro Living | Hermitage 2

Next
Next

Urban Retreat | New York City